Villas, Sunset Villas El Chaparral, Marbella
- €2,548,000
Description
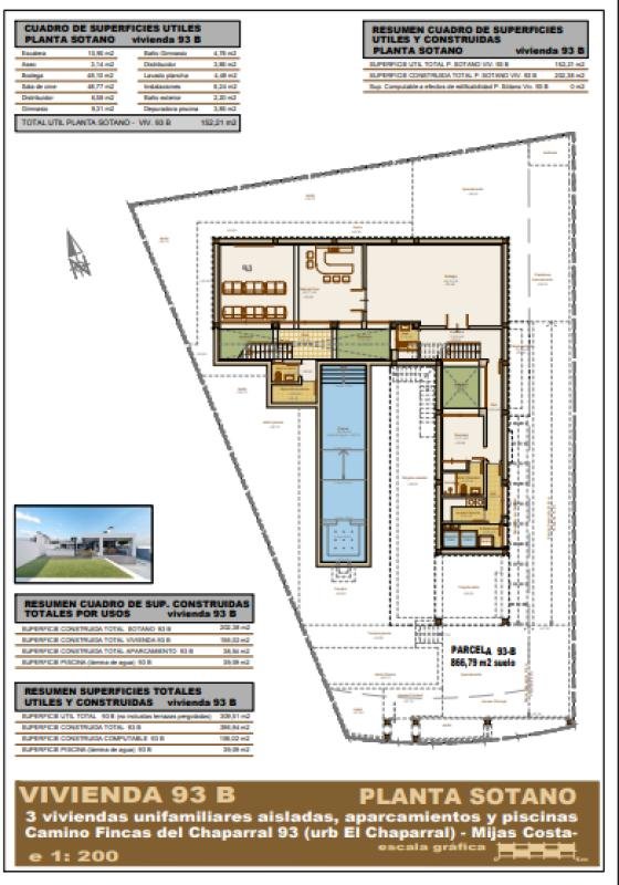
Are you searching for a modern, bright villa ready for you to move in this very year? Discover these stunning independent villas tailored for those who seek an exclusive lifestyle in one of the most sought-after areas along the Costa del Sol.
These south-facing villas ensure all-day natural light, and each property features a spacious private garden, a breathtaking saltwater pool, and a solarium with panoramic views that are sure to impress. Built with top-quality materials and attention to every detail, these homes offer versatile spaces that can be customized to your preferences: whether you desire a gym, an office, a cinema room, or a play area, the choice is yours!
Details
Updated on February 11, 2026 at 4:29 pm-
Property ID HZ209638
-
Price €2,548,000
-
Property Size 397 m² Size
-
Bedrooms 6
-
Bathrooms 4
-
Year Built 2025
-
Property Type Villas
-
Property Status Under construction,2025
Address
-
City: Marbella
-
State/county: Malaga







